收集|施工現場臨時用電配電箱(機柜)標準化配置
收集|施工現場臨時用電配電箱(機柜)標準化配置詳細資料由專業的低壓開關柜、低壓配電柜、低壓配電箱報價廠家為您提供。
本系列配電箱(柜)適用于施工現場及室外臨時用電,應滿足“三級配電、二級漏電保護、一機一閘、一漏一箱”配電保護的使用要求。配電箱(柜)、開關箱的材料選擇、制造工藝、箱內電氣元件的選擇和配置應符合國家相關標準和建設部關于“十一五”期間技術推廣應用的規定。產品應通過CCC認證。配電箱(機柜)外殼由冷軋鋼板制成,防雨、防塵、戶外型。鋼板厚度符合JGJ-2005標準,經久耐用。
1
基本要求
(1) 配電箱(機柜)應按照《低壓成套開關設備和控制設備》GB7251.4第四部分規定的施工現場成套設備(ACS)的特殊要求和《施工現場臨時用電安全技術規范》JGJ42005的標準要求制造。
(2) 配電箱(柜)、開關箱的安裝和使用應符合《施工現場臨時用電安全技術規范》JGJ42005標準和《用電安全導則》GB/T13869的標準化要求。
(3) 配電箱(柜),開關箱應分為N線、PE線端子板,進出線必須通過端子板可靠連接。N線端子板必須與金屬電氣安裝板絕緣。聚乙烯線路端子板必須與金屬電氣安裝板電連接。進線和出線中的N線必須通過N線端子板連接;聚乙烯線路必須通過聚乙烯線路端子板連接。聚乙烯線路和端子板之間的連接必須采用電氣連接。電氣連接點的數量應該比盒子中的回路數量多2個。一個是PE線進入接線盒的連接點,另一個是重復接地的連接點。
(4)電氣元件應是符合GB/14048.2001、GB6829和JGJ42005標準的產品,并符合建設部“十一五”期間推廣應用的技術要求。
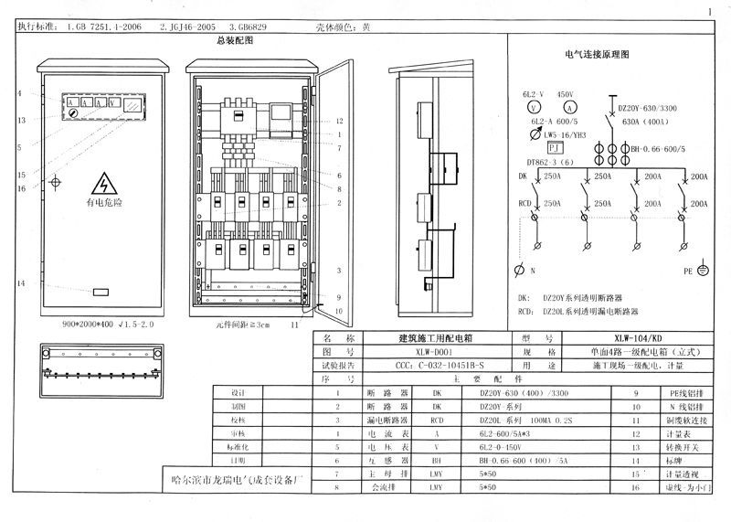
2
總計配電箱(機柜)
主開關設置DZ20型透明塑殼斷路器,隔離功能為400A-630A,分路設置8路。采用具有隔離功能的DZ20系列160A-250A透明塑殼斷路器,設置DZ20L(DZ15L)透明漏電開關或LBM-1系列漏電保護裝置,具有欠壓、過載、短路、漏電和斷相保護功能。同時,它配有電能表、電壓表、電流表和兩套電流容器。漏電保護裝置的額定漏電動作電流與額定漏電動作時間的乘積不應大于30毫安秒,較好選擇額定漏電動作電流為7150毫安,額定漏電動作時間大于0.1S且小于等于0.2S,動作時間為延時動作類型。

總計配電柜示意圖

總計配電柜端子板接觸圖

總計配電柜機柜門電氣連接點圖

四回路配電柜電氣系統圖

六個電路配電柜電氣系統圖

八個電路配電柜電氣系統圖
3
得分配電箱
(一)包括照明回路分配電箱(電源回路和照明回路分流分配)
DZ20系列透明塑殼斷路器,內置200A-250A隔離功能,作為主開關(適用于total 配電箱并聯斷路器);電源分路和照明分路控制開關采用DZ20或KDM-1型透明塑殼斷路器。DZ20或KDM-1透明塑殼斷路器用作每個配電電路的控制開關。PE線連接螺栓和N線連接螺栓應根據實際需要配置。

點配電箱示意圖

電氣連接圖

點配電箱電氣系統圖

包括塔吊回路分配電箱示意圖
(端子板觸點和電氣連接點的示意圖同上)

包括塔吊回路點配電箱系統圖
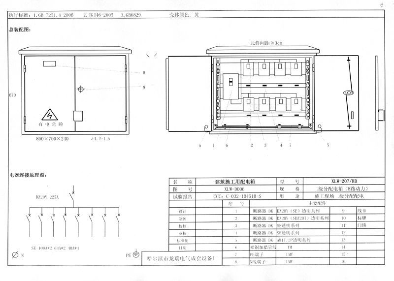
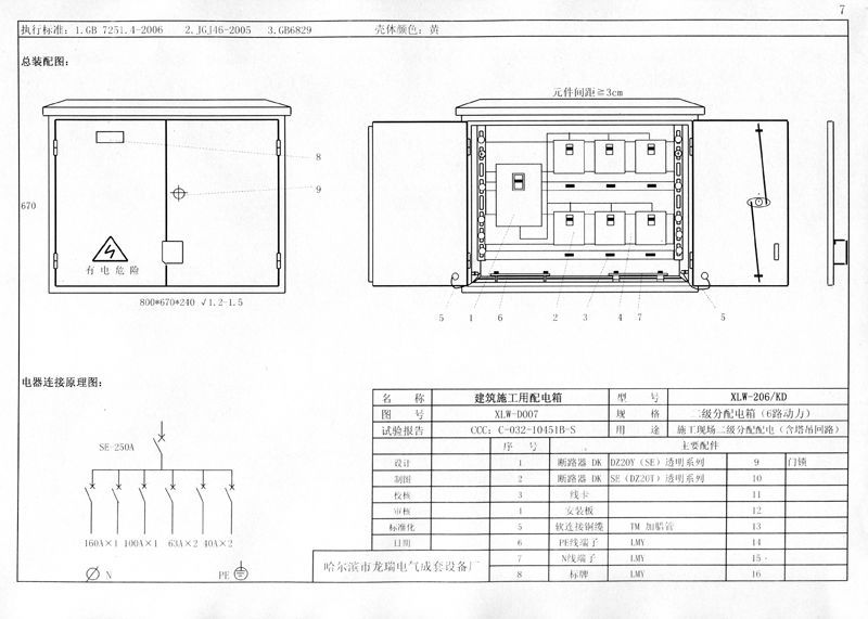
(2)不包括照明電路點配電箱

8個電路點配電箱原理圖
6個電路點配電箱包括塔式起重機電路
(端子板觸點和電氣連接點的示意圖同上)

8個循環點配電箱系統圖

6回路包括塔吊回路配電箱系統圖
4
開關箱(根據一臺機器、一個制動器、一個泄漏、一個箱設置)
(1)地面泵等大型設備的電源開關箱
配備KDM1或DZ20(160 A及380V以上)系列透明塑殼斷路器作為控制開關,配置DZ20L系列透明漏電斷路器或LBM-1系列漏電斷路器。聚乙烯線路端子排由3個連接螺栓組成。

地泵等大型設備開關箱示意圖

地泵等大型設備電氣系統圖
(2)塔式起重機及其他設備的電源開關箱
內置,同上

塔式起重機及其他設備電源開關箱示意圖

塔式起重機等動力設備的開關箱系統圖。
(3)3.0千瓦以下電力設備開關箱
DZ20(40A,380V)或SE、KDMI系列透明塑料外殼斷路器作為控制開關,DZ15LE(40A)或LBM1系列透明漏電斷路器,PE線端子排為4個連接螺栓。

40A以下電源開關箱示意圖

電源開關箱端子觸點和電氣觸點連接圖

40A以下設備電氣開關箱電氣系統圖
(四)5.5千瓦以上電力設備開關箱
根據受控設備的額定容量選擇控制開關和漏電斷路器。控制開關為DZ20(SE或KDM1)系列透明塑料外殼斷路器,漏電斷路器為DZ15L系列透明串聯漏電斷路器。聚乙烯電線連接有3個螺栓。
2
5.5千瓦以上設備開關箱示意圖

5.5千瓦以上設備開關箱電氣系統圖
(5)照明開關箱
配有KDMT/2 (40A)斷路器、DZ15L
40/290-40/290漏電斷路器和3個聚乙烯線螺栓。

照明開關箱示意圖

照明開關箱電氣系統圖
注:開關箱內漏電斷路器必須選用額定漏電動作電流不大于30mA、額定漏電動作時間不大于0.1S、電流速斷和電磁電機保證產品。
total 配電箱中型漏電斷路器應為配電保護產品。
5
配電室布局應符合下列要求
(1) 配電柜前操作通道寬度,單排或雙排背靠背布置不小于1.5m,雙排面對面布置不小于2m;
(2) 配電柜后面的維修通道寬度,單排布置或雙排面對面布置不小于0.8m,雙排背對背布置不小于1.5m,如果某些地方有建筑結構突出部分,此時通道寬度可減少0.2m:
(3) 配電柜側維修通道的寬度不得小于1m;
(4)配電室屋頂與地面的距離不得小于3m。
6
配電箱安裝應滿足以下要求
(一)固定配電箱,開關箱盒中心與地面垂直距離為1.1.6 m..移動盒與地面的垂直距離為0.8—1.6m..配電箱時,開關箱應安裝在牢固穩定的支架上。
(2) 配電箱,開關箱在建筑物下降半徑或塔吊臂旋轉半徑內必須做雙層防護棚,并有隔離措施。
資料來源:朱龍電氣公司
版權屬于原作者。如果有任何侵權,請聯系我們。
更多選型規格報價定制等問題可及時聯系廠家,以上就是收集|施工現場臨時用電配電箱(機柜)標準化配置全部內容。
- 上一篇:什么是配電箱?
- 下一篇:配電箱安裝問題,看你知道多少
